
中和區秀朗路三段老舊社區蛻變新風貌
丹棠城林協助昇陽建設中和秀朗路更新案事業及權變計畫核定
本案範圍內有兩個家族皆已在此扎根生活數載,土地乘載著家族的記憶,隨著都市發展,儘管住戶盡力維持屋況,仍因房屋建成時間過於久遠,難堪現代生活使用,因此期望透過都更程序重建,將低矮老宅蛻變為寧適的好宅。
經風霜的起家厝完成使命 邁出新生第一步
本案更新單元位於新北市中和區秀朗路三段以西、秀朗路三段10巷以北、秀朗路三段10巷12弄以東及民生路67巷以南所圍街廓內,面積共計2,419.35平方公尺,現況主要作為住宅使用,範圍內建築物屋齡皆已逾40年,其中三棟磚造房屋屋齡更是超過60年,建物結構早已受損,且土地利用效率低落,此外,範圍內鐵皮違章遍布,管線系統老舊有消防安全疑慮,且難以再持續使用,儼然亟待重建。

基地位置及更新前現況

更新前現況
丹棠城林受昇陽建設委託辦理都市更新申請程序,並攜手高仲廷建築師事務所、展碁不動產估價師聯合事務所等專業團隊共同努力,於2023年11月底協助申請事業計畫及權利變換計畫報核,歷經1年半左右的都市更新審議流程,最終於今(2025)年7月取得核定函,邁向重建路上的第一塊里程碑。
社區凝聚高度共識 地主給予百分之百的信任
本案實施者昇陽建設作為台灣老牌的上市建商,營運45年以來,以穩健的作風及對於建案高規格的自我要求享譽業界,並深獲地主們的認同,經整合後取得住戶100%的同意,使本案在房屋選配及審議過程中,都能夠安穩前行。
此外,基於對完成都更這個共同目標的期盼,兩家族皆出具協議書,同意因親屬關係將土地劃為一宗進行估價,並經專案小組及審議會認同通過,在符合現實邏輯的情況下,透過規劃的技巧及整合的成功,創造新的估價條件案例。
經風霜的起家厝完成使命 邁出新生第一步
本案更新單元位於新北市中和區秀朗路三段以西、秀朗路三段10巷以北、秀朗路三段10巷12弄以東及民生路67巷以南所圍街廓內,面積共計2,419.35平方公尺,現況主要作為住宅使用,範圍內建築物屋齡皆已逾40年,其中三棟磚造房屋屋齡更是超過60年,建物結構早已受損,且土地利用效率低落,此外,範圍內鐵皮違章遍布,管線系統老舊有消防安全疑慮,且難以再持續使用,儼然亟待重建。

基地位置及更新前現況


更新前現況
丹棠城林受昇陽建設委託辦理都市更新申請程序,並攜手高仲廷建築師事務所、展碁不動產估價師聯合事務所等專業團隊共同努力,於2023年11月底協助申請事業計畫及權利變換計畫報核,歷經1年半左右的都市更新審議流程,最終於今(2025)年7月取得核定函,邁向重建路上的第一塊里程碑。
社區凝聚高度共識 地主給予百分之百的信任
本案實施者昇陽建設作為台灣老牌的上市建商,營運45年以來,以穩健的作風及對於建案高規格的自我要求享譽業界,並深獲地主們的認同,經整合後取得住戶100%的同意,使本案在房屋選配及審議過程中,都能夠安穩前行。
此外,基於對完成都更這個共同目標的期盼,兩家族皆出具協議書,同意因親屬關係將土地劃為一宗進行估價,並經專案小組及審議會認同通過,在符合現實邏輯的情況下,透過規劃的技巧及整合的成功,創造新的估價條件案例。
圓滿處理國有土地及排水溝問題
本案更新單元北側(景福段211、212地號)原為國有畸零土地,現況為排水溝,考量土地細碎經權利變換分配後取得之單元過小,不易於管理及利用,因此建議實施者依據「國有非公用不動產讓售作業程序」,由鄰地地主檢附畸零地合併使用證明,於事業計畫報核前完成國有地讓售,達成雙贏局面。另有關現況排水溝,因其肩負周邊排水任務,仍有存續之必要,本案敷地計畫亦保留其原使用,並自水溝邊緣甫開始退縮,設置包含喬木及灌木的複層綠帶,透過景觀規劃,使不協調的環境線邊緣變得柔和。

水溝保留位置圖
融合商業、綠意與安全的更新規劃 開啟社區新篇章
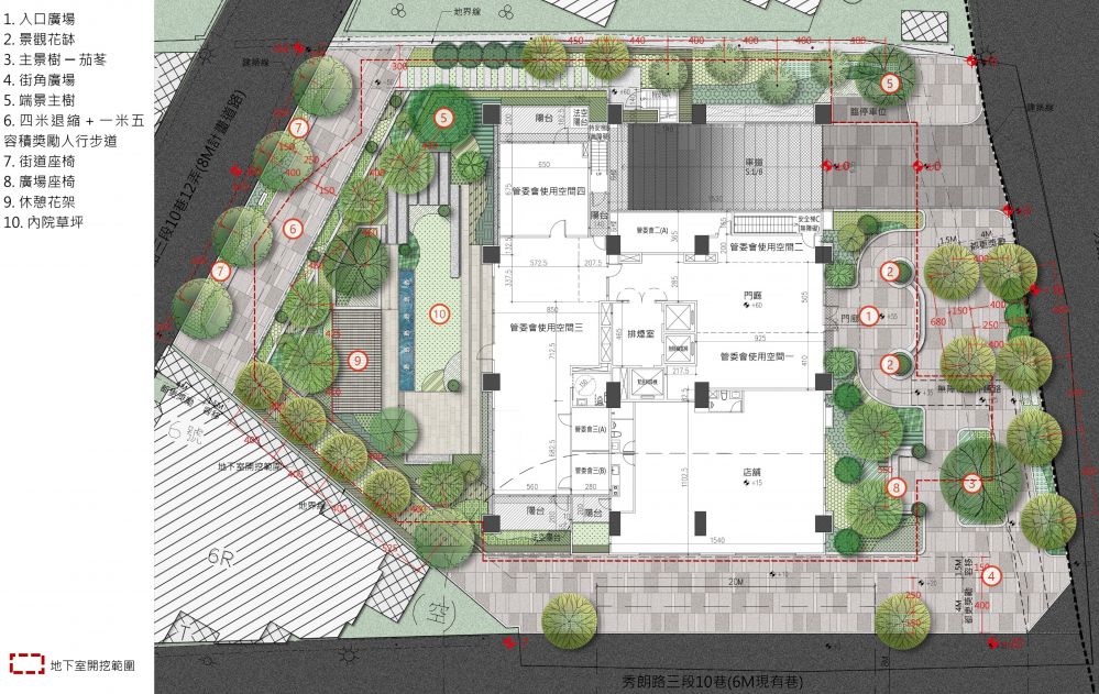
為促進土地有計畫的再開發利用,並改善生活品質與居住安全,本案透過都市更新事業爭取容積獎勵,更新後將規劃興闢一棟地上24層、地下5層之耐震好宅,結構採用鋼筋混凝土,導入無障礙設計,並爭取取得銀級綠建築、銀級智慧建築雙標章,一樓配合地主需求,規劃1戶商業單元,樓上層則規劃192戶住宅單元。建築物本身採用淺色系作為主要色調,配合對稱等比的設計語彙,展現獨特典雅、低調大氣的氣質。景觀設計部分則選用8種、總計36株的喬木,搭配16種灌木及9種地被,呈現富含層次的綠色環境,降低更新後新建的高樓對周邊環境產生的視覺衝擊。
此外,更新重建除增加土地利用效率外,賦予不特定公眾額外的價值亦是重中之重。本案於三側臨路段皆承諾完整開闢計畫道路及現有巷道,並協助施作側溝,串聯周邊排水系統,且退縮4公尺設計供公眾通行之人行步道及雙排綠帶,打造舒適的步行空間,落實都市更新事業之公益性,使窳陋的都市景觀煥然一新。
景觀規劃圖

行人步道規劃圖
.jpg)
更新後建築物模擬圖
結語
中和區秀朗路三段都更案立基於百分之百的地主支持,並由專業團隊攜手推動,將地主原本僅5戶的使用空間,提升為近百戶的嶄新社區,徹底翻轉兩個家族的生活面貌,從建築物低矮且鐵皮違章蔓生的老舊區域,蛻變為綠意蓊鬱的高雅大樓。期望本案重建的成功能為地方帶來改變的動能,使老舊密集的舊公寓森林,展開新生的篇章。
本案更新單元北側(景福段211、212地號)原為國有畸零土地,現況為排水溝,考量土地細碎經權利變換分配後取得之單元過小,不易於管理及利用,因此建議實施者依據「國有非公用不動產讓售作業程序」,由鄰地地主檢附畸零地合併使用證明,於事業計畫報核前完成國有地讓售,達成雙贏局面。另有關現況排水溝,因其肩負周邊排水任務,仍有存續之必要,本案敷地計畫亦保留其原使用,並自水溝邊緣甫開始退縮,設置包含喬木及灌木的複層綠帶,透過景觀規劃,使不協調的環境線邊緣變得柔和。

水溝保留位置圖
融合商業、綠意與安全的更新規劃 開啟社區新篇章
為促進土地有計畫的再開發利用,並改善生活品質與居住安全,本案透過都市更新事業爭取容積獎勵,更新後將規劃興闢一棟地上24層、地下5層之耐震好宅,結構採用鋼筋混凝土,導入無障礙設計,並爭取取得銀級綠建築、銀級智慧建築雙標章,一樓配合地主需求,規劃1戶商業單元,樓上層則規劃192戶住宅單元。建築物本身採用淺色系作為主要色調,配合對稱等比的設計語彙,展現獨特典雅、低調大氣的氣質。景觀設計部分則選用8種、總計36株的喬木,搭配16種灌木及9種地被,呈現富含層次的綠色環境,降低更新後新建的高樓對周邊環境產生的視覺衝擊。
此外,更新重建除增加土地利用效率外,賦予不特定公眾額外的價值亦是重中之重。本案於三側臨路段皆承諾完整開闢計畫道路及現有巷道,並協助施作側溝,串聯周邊排水系統,且退縮4公尺設計供公眾通行之人行步道及雙排綠帶,打造舒適的步行空間,落實都市更新事業之公益性,使窳陋的都市景觀煥然一新。


行人步道規劃圖
.jpg)
更新後建築物模擬圖
結語
中和區秀朗路三段都更案立基於百分之百的地主支持,並由專業團隊攜手推動,將地主原本僅5戶的使用空間,提升為近百戶的嶄新社區,徹底翻轉兩個家族的生活面貌,從建築物低矮且鐵皮違章蔓生的老舊區域,蛻變為綠意蓊鬱的高雅大樓。期望本案重建的成功能為地方帶來改變的動能,使老舊密集的舊公寓森林,展開新生的篇章。
計畫內容摘要 | |
案名 | 擬訂新北市中和區景福段215地號等11筆土地都市更新事業計畫及權利變換計畫案 |
基地位置 | 中和區秀朗路三段10巷12弄、秀朗路三段、及秀朗路三段10巷所圍街廓 |
實施者 | 昇陽建設企業股份有限公司 |
基地面積 | 2,419.35㎡ |
使用分區 | 住宅區 |
更新前 | 產權:私有土地2,419.35㎡、公有土地0.00㎡ |
所有權人:私有土地13人、公有土地0人 | |
戶數:2戶 | |
停車位:2輛 | |
建物面積:1,127.50㎡ | |
更新後 | 用途:一般零售業、集合住宅 |
實設建蔽率:30.86% | |
實設容積率:530.09% | |
更新獎勵容積:3,629.02㎡(50.00%) | |
容積移轉:1,937.89㎡(26.70%) | |
允建容積:12,824.96㎡ | |
總樓地板面積:23,909.55㎡ | |
構造樓層:RC,地上24層/地下5層 | |
停車位數:汽車:164輛,機車:193輛 | |
總戶數:193戶 | |
實施方式 | 權利變換 |
更新費用 | 2,102,483,038元 |
總銷金額 | 3,987,955,220元 |
更新規劃 | 丹棠城林都市更新股份有限公司 |
建築設計 | 高仲廷建築師事務所 |
不動產估價 | 展碁不動產估價師聯合事務所、誠石不動產估價師事務所、華晟不動產估價師事務所 |
更新事業推動 | |
2023.10.20 | 事業及權利變換計畫公聽會 |
2023.10.07~2023.11.07 | 申請分配 |
2023.11.23 | 事業及權利變換計畫申請報核 |
2024.05.29~2024.06.28 | 公開展覽 |
2024.06.14 | 公辦公聽會 |
2024.07.22 | 第一次專案小組 |
2024.12.16 | 第二次專案小組 |
2025.05.23 | 事業及權利變換計畫審議會(審議通過) |
2025.07.17 | 事業及權利變換計畫核定公告 |
(本文原載於都市更新簡訊第107期)